Residential Study

Self initiated residential project developed to demonstrate professional documentation, spatial planning, and visual design skills gained through practice.
All work shown is independently produced and does not represent client work.

Design Direction.

Establishing the conceptual and material direction for the project.

Created with Adobe InDesign and Photoshop

Living Room Scheme

Powder Room Scheme

Dining Room Scheme

Kitchen Scheme


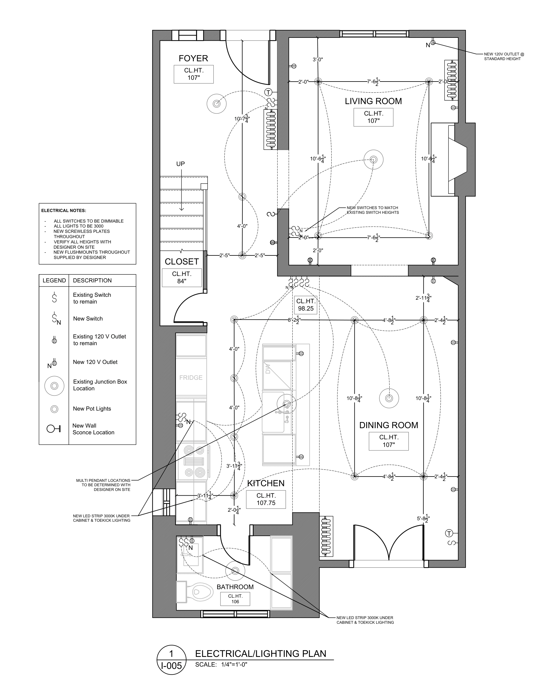
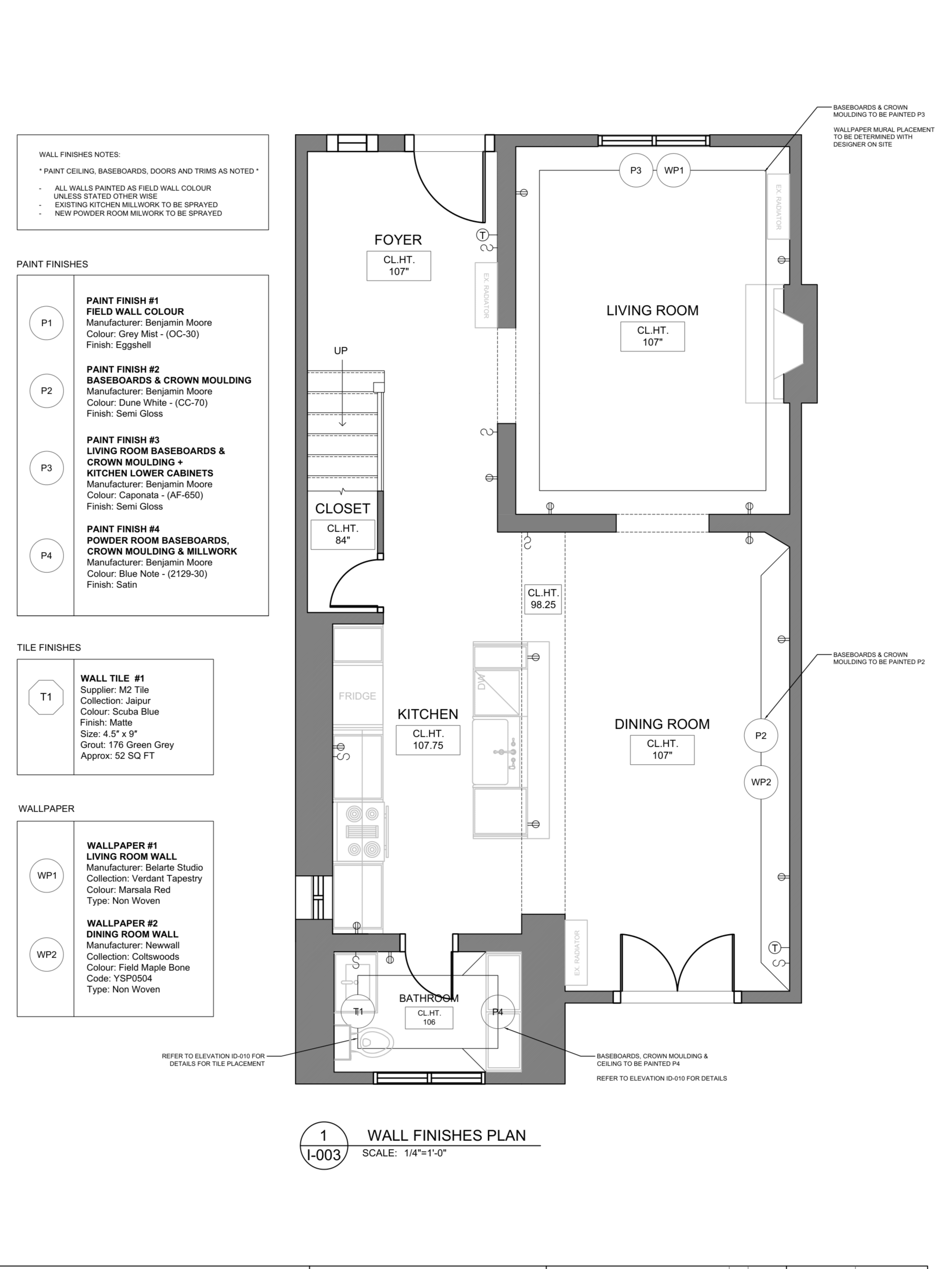
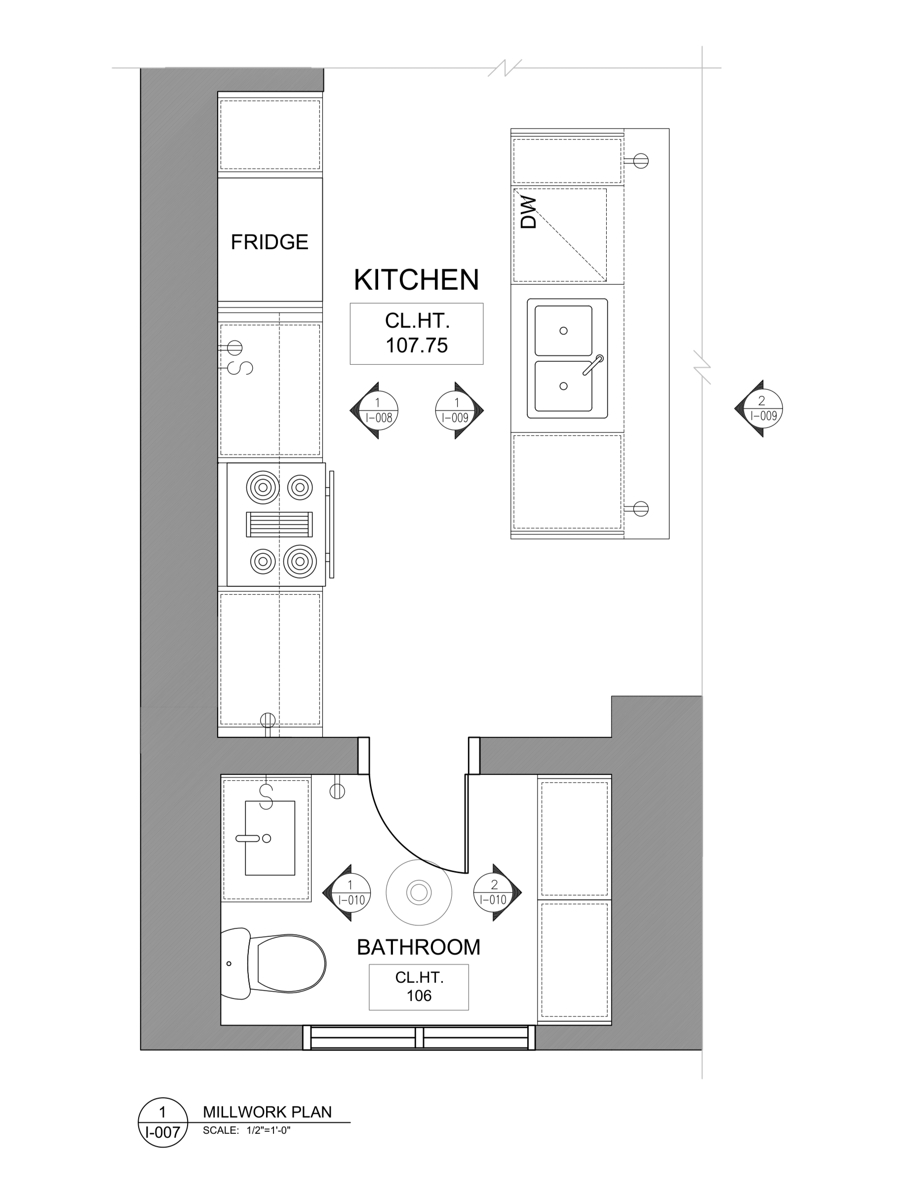
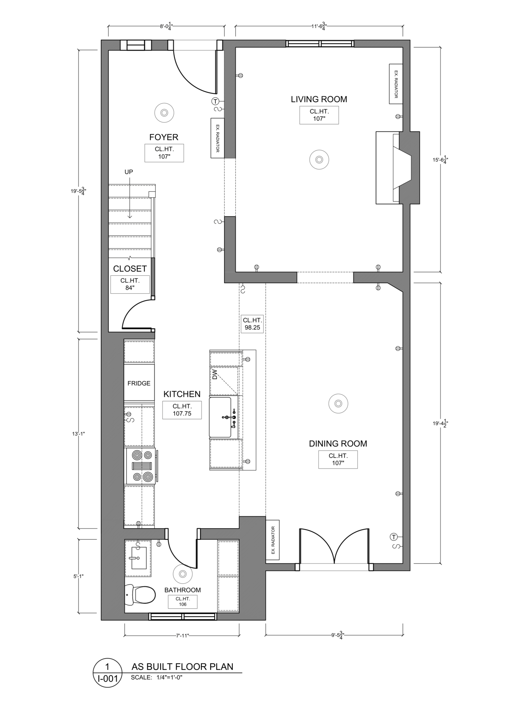
Demonstrating residential documentation standards and technical coordination.

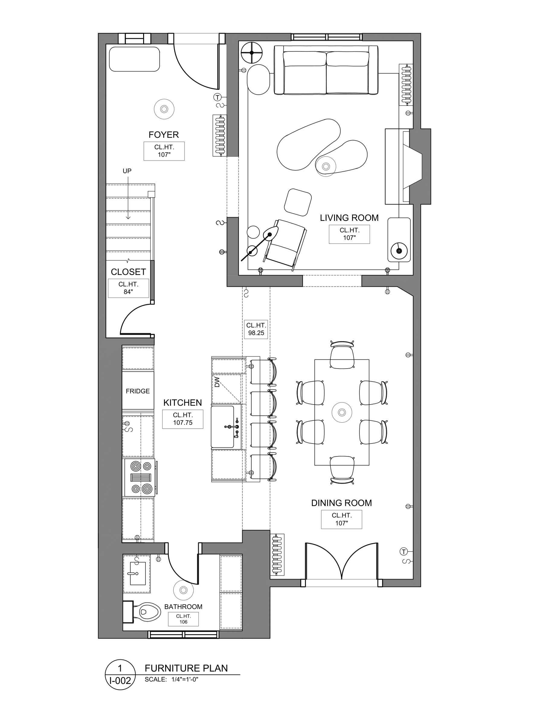
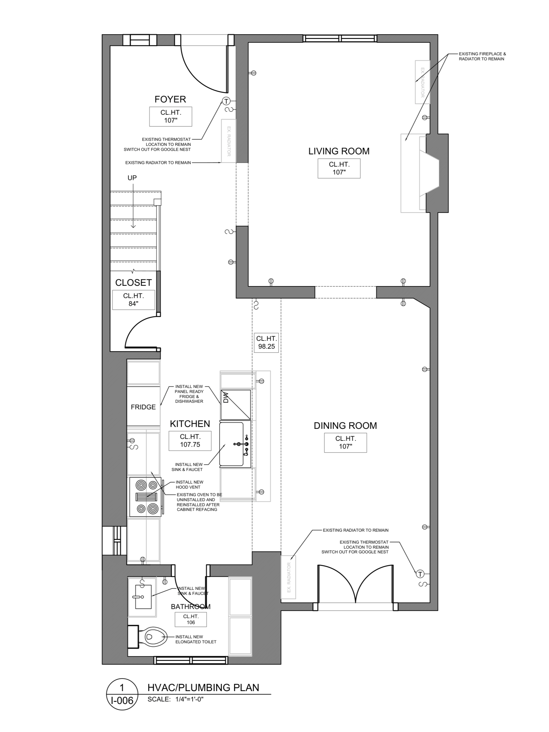
Made with AutoCAD

Technical Drawings

Floorplans

Elevations

Renderings

Translating concept and documentation into spatial perspectives.

Made with SketchUp and Enscape.

Next
Next

Academic Projects